Courtesy of Stephen Lau of RE/MAX Excellence
MLS® # E4468537
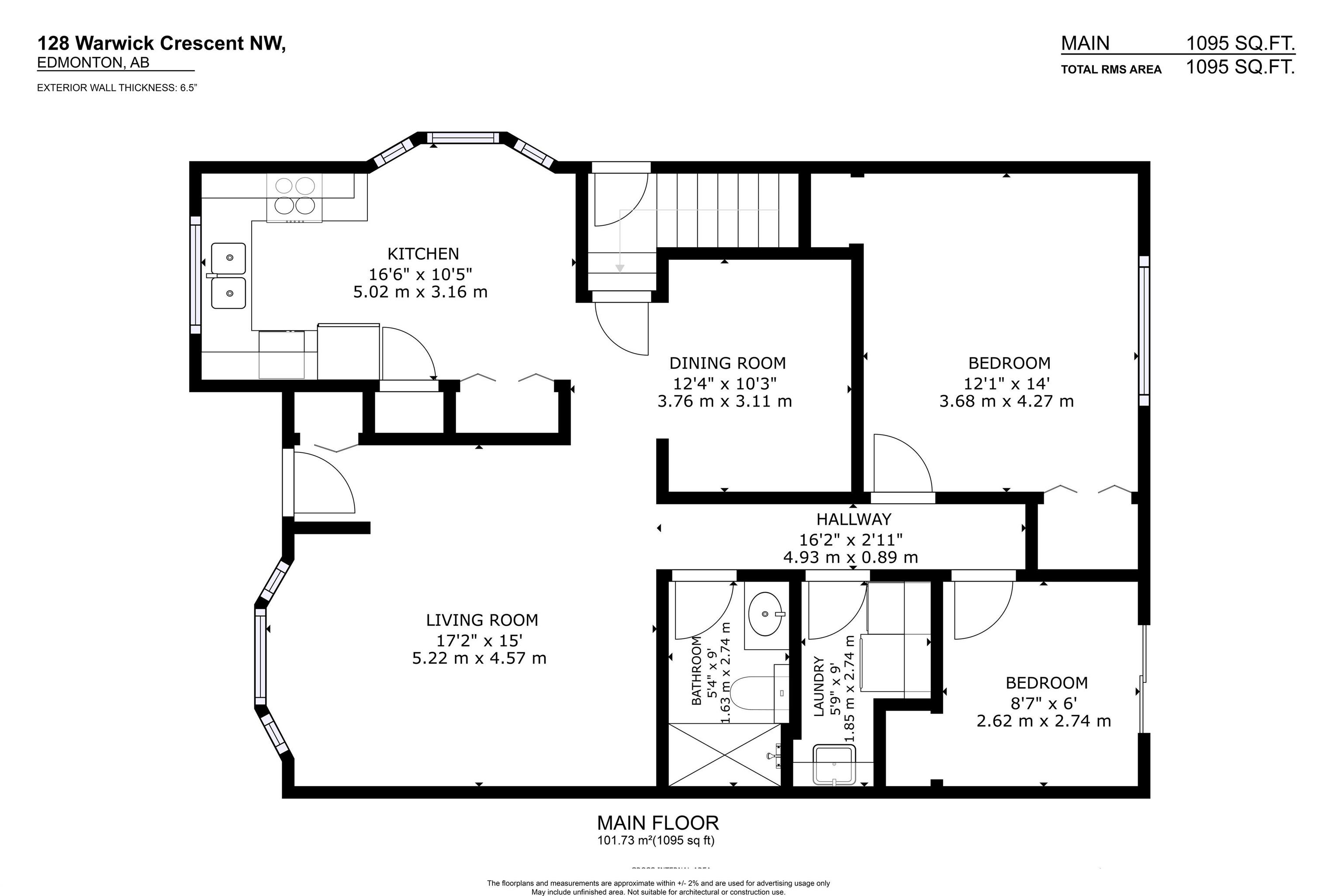
Located in the mature community of Dunluce, this well-maintained bungalow offers a practical layout & excellent access to everyday amenities. The bright main floor features a comfortable living area with good natural light, a dedicated dining space, & a functional kitchen with ample cabinetry & prep space. Two bedrooms are located on the main level, including a spacious primary bedroom, along with a full bathroom & convenient main-floor laundry. The unfinished basement provides generous storage & flexibilit...